
º£ÄÚÓàÈȹøÂ¯ÐÐÒµÊ×¼ÒÈý·ÏÓàÈȹøÂ¯¡¢¡¢Ì¼ËØÓàÈȹøÂ¯µÈ¯ÐÍÊг¡Õ¼ÓÐÂʵִï70%ÒÔÉϵÄÊÖÒÕ¢¶ÏÐÍÆóÒµ¡£
ÒÔÑз¢Á¢Òì´òÌìÏ£¬£¬£¬CA88¶ÀÍÌ÷¡Í·£¬£¬£¬¼«´óµØÓ°ÏìÁËÖйúÓàÈȽÓÄɹøÂ¯Êг¡µÄÃûÌÃ---½öÓàÈȹøÂ¯ÏµÁоÍÓµÓÐÈýÊ®ÓàÏî¹ú¼ÒÊÚȨרÀû¡£ÏÖÔÚ£¬£¬£¬CA88ÊÖÒÕÑз¢ÖÐÐÄ6ÏîÓàÈÈÁ¢ÒìÊÖÒÕÕýÔÚÉêÇëרÀûÊÚȨ¡£

Ì¼ËØ»Ø×ªÒ¤ÓàÈȹøÂ¯
¸ÃÐÐÒµ¹øÂ¯Ö÷ÒªÓÐÌ¼ËØ»Ø×ªÒ¤ÓàÈȹøÂ¯ºÍ¹ÞʽÓàÈȹøÂ¯Á½´óϵÁÐ×ÔȻѻ·ÓàÈȹøÂ¯¡£½ÓÄÉÁ¢Ê½°²ÅÅ£¬£¬£¬½á¹¹ÐÂÓ±£¬£¬£¬ÐÔÄÜÏȽø£¬£¬£¬Ìì϶À´´£¬£¬£¬ÊÇCA88¶À¼ÒÑÐÖÆµÄÒ»ÖÖÐÂÐÍÌ¼ËØÓàÈȹøÂ¯¡£
»¯¹¤Èý·Ï»ìȼÓàÈȹøÂ¯
»ìȼ¯ÓàÈȹøÂ¯¼°´µÃñË×ÓàÈȹøÂ¯ÊÇÓ¦ÓÃÓÚ»¯·Ê¡¢¡¢»¯¹¤£¨ÓÈÆäÊǼ״¼¡¢¡¢ÒÒ´¼¡¢¡¢¼×È©¡¢¡¢ºÏ³É°±£©ÐÐÒµµÄÀíÏë¸ßЧ½ÚÄÜ×°±¸¡£
²£Á§ÈÛ¯ÑÌÆøÓàÈȹøÂ¯
CA88¿ª·¢ÓÐÓ¦ÓÃÓÚ¸ÃÐÐÒµ400~900t/d²£Á§Ò¤ÅäÌ×µÄÁ¢Ê½µ¹¡°U¡±ÐÎÓàÈȹøÂ¯£¬£¬£¬Õ½Ê¤Á˹ŰåÈȹÜʽÓàÈȹøÂ¯ÔڽṹºÍÔËÐÐÖеÄÎó²î£¬£¬£¬Ê¹ÓÃÊÙÃü³¤£¬£¬£¬ÔËÐÐά»¤¼òÆÓ£¬£¬£¬¾¼ÃÇå¾²¿É¿¿£¬£¬£¬ÍêÈ«ÊÊÓÃÓÚʹÓÃÖØÓÍ»ò×ÔÈ»ÆøÈ¼Áϵĸ¡·¨²£Á§ÈÛ¯Éú²úÏß¡£
ÉÕ½áÀäÈ´»úÓàÈȹøÂ¯
¿ª·¢µÄ˳ӦÓÚ¸ÖÌúÐÐÒµÉÕ½áÀäÈ´»úÓàÈÈÑÌÆøµÄÁ¢Ê½¹øÂ¯£¬£¬£¬ÓÐÓýâ¾öÁËÓàÈȹøÂ¯µÄ»ý»Ò¡¢¡¢Ä¥Ë𡢡¢Â©·çµÈÄÑÌ⣬£¬£¬Í¬Ê±¸ÃϵÁйøÂ¯¹ØÓÚ·ÏÆøÎ¶ȡ¢¡¢·ÏÆø·Û³¾¾ßÓкܺõÄ˳ӦÐÔ¡£
ΣÏÕ·ÏÆúÎï·ÙÉÕÓàÈȹøÂ¯
ÔÚÎüÊÕÍâÑóͬÀà¹øÂ¯µÄÓŵãºó£¬£¬£¬CA88Ñз¢µÄÊÊÓÃÓÚ¸ÃÐÐÒµµÄרÀûÐÍÓàÈȹøÂ¯Îªº£ÄÚÊ×´´£¬£¬£¬½á¹¹ÐÂÓ±ÆæÒ죬£¬£¬¾¼ÃÐÔÄÜ´¦ÓÚº£ÄÚÁìÏÈְλ¡£
½¹»¯ÓàÈȹøÂ¯
ΪÁ˽øÒ»²½½ÓÄÉÁ¶½¹·ÏÆø£¬£¬£¬CA88ÑÐÖÆ¿ª·¢ÁË˳ӦÓÚ¸ÃÐÐÒµµÄ²¹È¼Ðͼ°·Ç²¹È¼ÐÍË«£¨µ¥£©¹øÍ²ºáÖÃʽ×ÔȻѻ·Ë®¹Ü¹øÂ¯Á½´óϵÁС£½á¹¹ÐÂÓ±£¬£¬£¬ÐÔÄÜÏȽø£¬£¬£¬ÊÇCA88¶À¼Ò¿ª·¢ÑÐÖÆµÄÒ»ÖÖרÀûÁ¶½¹·ÏÆøÓàÈȹøÂ¯¡£
¹øÂ¯µÄÅÅÑÌζÈ
ÎÞ·¨¿ØÖÆ
¹ýÈÈÆ÷µÄ¹ýÈÈ
ÄÜÁ¦Ï½µ
ʡúÆ÷µÄ
Ëð»µË®Æ½¸ß
°´GB/T28056-2011¡¶Ñ̵ÀʽÓàÈȹøÂ¯Í¨ÓÃÊÖÒÕÌõ¼þ¡·»®¶¨
ûÓйýÈÈÆ÷µÄ¹øÂ¯£¬£¬£¬Æä±¥ºÍÕôÆûʪ¶È
Ë®¹Üʽ¹øÂ¯¡Ü3% ¹ø¿Çʽ¹øÂ¯¡Ü4%
ÓйýÈÈÆ÷µÄ¹øÂ¯£¬£¬£¬¹ýÈÈÆ÷Èë¿Ú±¥ºÍÕôÆûʪ¶È¡Ü1%
¹¤ÒµÓùøÂ¯£¬£¬£¬¹ýÈÈÕôÆûº¬ÑÎÁ¿²»Áè¼Ý0.5mg/kg
¹ýÈÈÕôÆûζȵÄÎó²î¹æÄ£²Î¿¼Öµ
¹øÂ¯´óÆøÎÛȾÎïµÄÅÅ·ÅÓ¦ÇÐºÏ GB13223 ºÍ GB13271 µÄÒªÇ󣬣¬£¬ÆäËûÎÛȾÎïµÄÅÅ·ÅÓ¦ÇкϹú¼Ò¡¢¡¢µØ·½»òÐÐÒµÓйعæÔòºÍ±ê×¼µÄ»®¶¨¡£
| ÓÐÎÞβ²¿ÊÜÈÈÃæ | ÎÞβ²¿ÊÜÈÈÃæ | ÓÐβ²¿ÊÜÈÈÃæ | ||
| ¹øÂ¯ÀàÐÍ | ÕôÆû¹øÂ¯ | ÈÈË®¹øÂ¯ | ÕôÆû¹øÂ¯ | ÈÈË®¹øÂ¯ |
| ÅÅÑÌζȡæ | <250 | <220 | <180 | <160 |
ÔÚ¸ÖÌúÆóÒµµÄÍ⹺ÄÜÔ´±¾Ç®ÖУ¬£¬£¬ÃºÊÇ×îÖ÷ÒªµÄ£¬£¬£¬Æä´Î¾ÍÊǵçÁ¦¡£Ò»Ì¨360ƽ·½Ã×µÄÉÕ½á»úÅäÌ×50-60¶ÖµÄÓàÈȹøÂ¯¡¢¡¢10Õ×Íߵķ¢µç»ú×飬£¬£¬Ã¿Äê¿ÉÒÔʵÏÖÕý³£·¢µç7000Сʱ£¬£¬£¬½«¼«´óïÔÌ¸ÖÆóµÄÍ⹺µç¹æÄ£¡£
ÏÖÔÚÓàÈÈ·¢µç½ÏºÃµÄ¸Ö³§£¬£¬£¬×Ô¾õµçÕ¼±ÈÒѾ¿ÉÒÔµÖ´ï70%£¬£¬£¬Ò»°ãµÄÒ²ÔÚ40%×óÓÒ¡£Í⹺µçïÔÌ£¬£¬£¬¸ÖÆóµÄÄÜÔ´±¾Ç®×ÔÈ»¾Í½µµÍÁË¡£ËäÈ»¸ÖÌúÒµµÍÃÔ£¬£¬£¬¿ÉÊÇȴûÓÐÓ°ÏìÆóÒµÔÚ½ÚÄÜÁìÓòµÄͶ×Ê¡£Ïà·´£¬£¬£¬ÕýÊÇÓÉÓÚÀûÈó¿Õ¼äÓÐÏÞ£¬£¬£¬¸ÖÆó²Å»á»¨¸ü¶à¾«ÉñÓÃÓÚ½ÚÄÜͶÈë¡¢¡¢½µµÍ±¾Ç®¡£
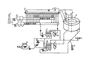
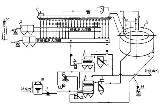
½øÈëÓàÈȹøÂ¯µÄÑÌÆøÊýÄ¿½Ï´ó£¬£¬£¬ÕôÆûºÍ±¥ºÍË®ËùÐèµÄÈÈÁ¿Ö÷ÒªÀ´×ÔÓÚÑÌÆø£¬£¬£¬¶ø¸¨ÖúȼÉÕÆ÷ÐèÒªµÄ¿ÕÓîÁ¿½ÏÉÙ£¬£¬£¬¿ÉÊÇÐèÒªÀäÈ´µÄÑÌÆøÊýĿȴºÜ´ó£¬£¬£¬ÊýÄ¿½ÏÉÙµÄ¿ÕÆøÄÑÓÚÓÐÓõؽÓÄÉÑÌÆøÖеÄÈÈÁ¿£¬£¬£¬ÈôÊÇÉèÖÃ¿ÕÆøÔ¤ÈÈÆ÷£¬£¬£¬²»µ«½ÓÄɵÄÈÈÁ¿ÉÙ£¬£¬£¬²¢ÇÒËùÐèµÄ´«ÈÈÃæ»ýºÜ´ó£¬£¬£¬Æä¾¼ÃÐ§Òæ±Ø¶¨ºÜ²î¡£ÒÔÊÇ£¬£¬£¬Ò»°ãÓàÈȹøÂ¯µÄʡúÆ÷±ÈͨÀý¼ÓÈȯ´óµÃ¶à£¬£¬£¬Í¨¹ýʡúÆ÷À´ÓÐÓõؽÓÄÉÑÌÆøÈÈÁ¿¡£
½ÚµãβîÒ²½ÐÕµãβ£¬£¬ÊÇ»»ÈÈÀú³ÌÖÐÕô·¢Æ÷³ö¿ÚÑÌÆøÓë±»¼ÓÈȵı¥ºÍË®ÆûÖ®¼äµÄ×îСβ£¬£¬µ±½Úµãβî¼õСʱ£¬£¬£¬ÓàÈȹøÂ¯µÄÅÅÆøÎ¶ȻáϽµ£¬£¬£¬ÑÌÆøÓàÈȽÓÄÉÁ¿»áÔö´ó£¬£¬£¬ÕôÆû²úÁ¿ºÍÆûÂÖ»úÊä³ö¹¦¶¼ËæÖ®ÔöÌí£¬£¬£¬¼´¶ÔӦןߵÄÓàÈȹøÂ¯ÈÈЧÂÊ£¬£¬£¬µ«Æ½¾ù´«ÈÈβîÒ²ËæÖ®¼õС£¬£¬£¬Õâ±Ø½«Ôö´óÓàÈȹøÂ¯µÄ»»ÈÈÃæ»ý¡£ÏÔÈ»£¬£¬£¬ÊDz»ÔÊÐí¼´ÊÇÁãµÄ£¬£¬£¬·ñÔò£¬£¬£¬ÓàÈȹøÂ¯µÄ»»ÈÈÃæ»ý½«ÎªÎÞÏ޴󣬣¬£¬ÕâÊDz»ÏÖʵµÄ¡£±ðµÄ£¬£¬£¬Ëæ×ÅÓàÈȹøÂ¯»»ÈÈÃæ»ýµÄÔö´ó£¬£¬£¬È¼Æø²àµÄÁ÷×èËðʧҲ½«Ôö´ó£¬£¬£¬ÓпÉÄÜÊ¹È¼ÆøÂÖ»úµÄ¹¦ÂÊÓÐËù¼õС£¬£¬£¬µ¼ÖÂÁªºÏÑ»·µÄÈÈЧÂÊÓÐϽµµÄÇ÷ÊÆ¡£
¿Í»§ÐèÒªÌṩµÄÐÅÏ¢Ò²Êǹ¤³ÌʦÃÇÉè¼Æ¹øÂ¯Ê±Ó¦¾ß±¸µÄÌõ¼þ£º£¨1£©ÑÌÆø²à²ÎÊý£¬£¬£¬ÑÌÓîÁ¿(±ê¿ö»ò¹¤¿ö)¡¢¡¢ÑÌÆøÈë¿Úζȡ¢¡¢ÑÌÆøÒòËØ¡¢¡¢ÑÌÆøº¬³¾Á¿¡¢¡¢ÑÌÆø²àѹÁ¦(Õýѹ»ò¸ºÑ¹)¡¢¡¢¹øÂ¯ÑÌÆø²àϵͳ×èÁ¦£»£»£¨2£©¹øÂ¯²ÎÊý£¬£¬£¬¹øÂ¯¶î¶¨Õô·¢Á¿¡¢¡¢¹øÂ¯¶î¶¨ÕôÆûѹÁ¦¡¢¡¢¹øÂ¯¶î¶¨ÕôÆûζȡ¢¡¢¹øÂ¯ÅÅÑÌζȣ»£»£¨3£©ÆäËü²ÎÊý£¬£¬£¬Ö÷ÑÌÆøÏµÍ³ËùÊôÐÐÒµ¡¢¡¢ÏµÍ³¹¤ÒÕ˵Ã÷¡¢¡¢¹øÂ¯×°ÖÃÐÎʽ¡¢¡¢¹øÂ¯½á¹¹ÐÎʽ¡¢¡¢¹øÂ¯×°ÖÃµØÆøÏó²ÎÊý»òÆäËüÌØÊâÒªÇó¡£
ÓÉÓÚÉú²úϵͳ¼°ÓàÈÈ·¢µçÈÈÁ¦ÏµÍ³µÄÌØÊâÐÔ£¬£¬£¬¹øÂ¯ÔÚÕû¸öϵͳÖÐÖ÷ÒªÆðµ½ÒÔÏÂ×÷Ó㺣¨1£©¹øÂ¯Æðµ½½µµÍÕû¸öÑÌÆøÎ¶ȵÄ×÷Ó㬣¬£¬Äܹ»°ü¹ÜϵͳÖгý³¾×°±¸µÄÕý³£ÔËÐУ¬£¬£¬µÖ´ïµÍλ·±£ÅÅ·ÅÑÌÆø£»£»£¨2£©¹øÂ¯Í¨¹ýʹÓÃÓàÈȱ¬·¢¸ßθßѹÕôÆûͨ¹ýÓ벹ȼ¹øÂ¯ÕûÌåÅäÌ×ÍÆ¶¯ÆøÂÖ»úºÍ·¢µç»ú·¢µç£¬£¬£¬ÎªÕû¸öË®ÄàÉú²úϵͳװ±¸Ìṩ¶¯Á¦£»£»£¨3£©¹øÂ¯¾ßÓÐÒ»¶¨µÄ×Ô³ý³¾×÷Ó㬣¬£¬ÊèÉ¢³öµÄ»Ò³¾¿ÉÒÔÖØÐ½ÓÄÉʹÓ㬣¬£¬µÖ´ï¡°Ò»»ú¶àÓᱵĹ¦Ð§£¨4£©ÀûÓÚ½µµÍÕû¸öϵͳÄܺ쬣¬£¬×öµ½ÄÜÔ´µÄ³ä·ÖʹÓá£
¹ú¼ÒÖʼì×ܾ֡¶¹ØÓڹִ᳹ÐÐ<¹øÂ¯½ÚÄÜÊÖÒÕ¼àÊÓÖÎÀí¹æ³Ì>ºÍ<¹¤Òµ¹øÂ¯ÄÜЧ²âÊÔÓëÆÀ¼Û¹æÔò>µÄÓйØÒâ¼û¡·£¨ÖʼìÌØº¯{2010}85ºÅ£©ÒÑÓÐÃ÷È·»®¶¨£¬£¬£¬¹ØÓÚÓàÈȹøÂ¯ÄÜЧ²âÊÔ£¬£¬£¬´ýÏìÓ¦ÓàÈȹøÂ¯ÄÜЧ²âÊÔ±ê×¼Ðû²¼ºó£¬£¬£¬²Å»ª¿ªÕ¹Ïà¹ØÊÂÇé¡£¹ú¼Ò»¹Î´Ðû²¼ÏÖÓÐÓàÈȹøÂ¯µÄÄÜЧ²âÊÔ±ê×¼£¬£¬£¬ÒÔÊÇÔÝʱ²¢²»ÐèÒª¾ÙÐÐÄÜЧ²âÊÔÊÂÇé¡£
×ÔȻѻ·ÓàÈȹøÂ¯£¬£¬£¬ËùÓÐÊÜÈÈÃæ×é¼þµÄ¹Ü×ÓÊDZÊÖ±µÄ¡£¸øË®½øÈëʡúÆ÷ÎüÈȺ󣬣¬£¬½øÈëÆû°ü¡£Æû°üÓÐϽµ¹ÜÓëÕô·¢²¿µÄÏÂÁªÏäÏàÁ¬£¬£¬£¬Ï½µ¹ÜλÓÚÑ̵ÀÍâÃæ£¬£¬£¬²»ÎüÊÕÑÌÆøµÄÈÈÁ¿¡£Æû°ü»¹ÓëÕô·¢Æ÷µÄÉÏÁªÏäÏàÁ¬¡£Ö±Á¢¹Ü´ØÎüÊÕÑÌÆøµÄÈÈÁ¿¡£µ±Ë®ÎüÊÕÑÌÆøÈÈÁ¿¾ÍÓв¿·ÝË®Äð³ÉÕôÆû£¬£¬£¬ÓÉÓÚÕôÆûµÄÃܶȱÈË®µÄÃܶÈҪСµÃ¶à£¬£¬£¬ÒÔÊÇÖ±Á¢¹ÜÄÚÆûºÍË®»ìÏýÎïµÄƽ¾ùÃܶÈҪСÓÚϽµ¹ÜÖÐË®µÄÃܶȣ¬£¬£¬Á½ÕßÃܶȲîÐγÉÁËË®µÄÑ»·¡£
£¨1£©¸øË®ÓÉʡúÆ÷Éú³Ý¼¯Ïä½øÈëʡúÆ÷¹ÜÆÁ¼ÓÈȺóÁ÷Èë¹øÍ²£»£»£¨2£©Í¨¹ý¹øÍ²Ï²¿µÄ¼¯ÖÐϽµ¹Ü½øÈëÕô·¢Æ÷¹ÜÆÁ¡£ÎüÈȺóÉÏÉý½øÈë¹øÍ²¾ÙÐÐÆûË®ÊèÉ¢£»£»£¨3£©ÊèÉ¢ºó±¥ºÍË®ÔÙ½øÈ뼯ÖÐϽµ¹Ü£¬£¬£¬¶ø±¥ºÍÕôÆû´Ó¹øÍ²Éϲ¿ÒýÖÁ¹ýÈÈÆ÷£¬£¬£¬¾ÓÉÈÈ¹ÜÆÁÎüÈȺóÓɳö¿Ú¼¯ÏäÒý³ö¹øÂ¯£»£»£¨4£©ÔÚÁ½¼¶¹ýÈÈÆ÷Ö®¼ä°²ÅÅÅçË®¼õÎÂ×°Ö㬣¬£¬´Ó¶ø¿ÉÓÐÓõذü¹Ü³ö¿Ú¹ýÈÈÕôÆûζȣ»£»£¨5£©µÍѹÕôÆû½øÈë³ýÑõÆ÷ÓÃÓÚ³ýÑõ¡£
£¨1£©¹øÂ¯ÔÚÆô¶¯Ê±£¬£¬£¬¶¥²¿¼°Î²²¿·À±¬ÃÅ´¦Õ¥È¡Õ¾ÈË£»£»£¨2£©ÔÚÈκÎʱ¼ä£¬£¬£¬¿ÉÈ¼ÆøÌåŨ¶È±¨¾¯×°Öñ¨¾¯Ê±£¬£¬£¬²»µÃÆô¶¯¹øÂ¯»òÖÆÔì»ð»¨£¬£¬£¬Èç¹øÂ¯ÕýÔÚÔËÐÐÓ¦Á¬Ã¦Í£Â¯£¬£¬£¬ÊµÊ±¼ì²é²¢ÐÞ²¹Â©µã£»£»? £¨3£©È籬·¢µã²»×Å»ð»òÔËÐÐÖÐͻȻϨ»ðÇéÐΣ¬£¬£¬²»Ó¦Ç¿Ðжà´Î·ÙÉÕ£¬£¬£¬Ó¦Á¬Ã¦¼ì²éÔÒò£¬£¬£¬É¨³ý¹ÊÕÏ£»£»£¨4£©ÆñÂÛÔËÐÐÖб¬·¢ÈκÎÒÔÕÏ¡£¶¼Ó¦Á¬Ã¦Í£Â¯¼ì²éÔÒò£¬£¬£¬É¨³ý¹ÊÕÏ¡£Èç²»¿É×ÔÐнâ¾ö£¬£¬£¬²»Ó¦Âù¸É£¬£¬£¬Ó¦ÊµÊ±ÓëÎÒ¹«Ë¾ÁªÏµÅäºÏ½â¾ö¡££¨×¢£ºÒª×¢ÖØÇø·ÖÔËÐÐÖеÄÕý³£´ý»ú״̬ºÍ¹ÊÕÏÍ£»£»ú״̬¡££©
£¨1£©ÊÓ²ì·ç»ú¡¢¡¢Ë®±Ã¡¢¡¢ÓͱõȵÄÔËתÊÇ·ñƽÎÈ£¬£¬£¬ÉùÒôÊÇ·ñÕý³££¬£¬£¬ÈôÓÐÒì³££¬£¬£¬Ó¦ÊµÊ±Í£Â¯¼ì²éÔÒò£»£»£¨2£©ÊÓ²ìÓÍѹÁ¦±í¼°È¼ÆøÑ¹Á¦±íµÄÖ¸ÕëÊÇ·ñƽÎÈ»òÆ«ÀëÂÄÀúÖµ£¬£¬£¬ÈôÓÐѹÁ¦²»Õý³£µÄÇéÐΣ¬£¬£¬Ó¦ÊµÊ±Í£Â¯¼ì²éÔÒò£¬£¬£¬ÌØÊâ×¢ÖØÊÇ·ñÊÇ·ñÓÐȼÁÏ×ß©±¬·¢£»£»£¨3£©ÊÓ²ìÕôÆûѹÁ¦±í¼°¸øË®Ñ¹Á¦±íµÄÖ¸ÕëÊÇ·ñƽÎÈ»òÆ«ÀëÂÄÀúÖµ¡£ÈôÓÐѹÁ¦²»Õý³£µÄÇéÐΣ¬£¬£¬Ó¦ÊµÊ±Í£Â¯¼ì²éÔÒò¡£¸ÕÆô¶¯Ê±£¬£¬£¬Ö÷ÕôÆû·§Ó¦ÔÚÕôÆûѹÁ¦ÉÏÉýµ½0.4~0.5MPaʱ»ºÂý¿ªÆô£¬£¬£¬²»¿ÉÐж¯¹ýÃÍ¡£
£¨1£©ÊÓ²ìˮλ±íµÄˮ벨¶¯ÊÇ·ñºÜ´ó£¬£¬£¬ÈôÓÐÒì³££¬£¬£¬Ó¦ÊµÊ±Í£Â¯¼ì²éÔÒò£»£»£¨2£©¹øÂ¯ÔÚÔËÐÐʱ£¬£¬£¬Ó¦ÔȳÆÒ»Ö±µØ½«¸øË®ËÍÈ룬£¬£¬²¢¼á³Ö¹øÂ¯µÄˮλÔÚ»®¶¨Ë®Î»£¬£¬£¬²»ÔÊÐíˮλµÍÓÚÔÊÐíµÄ×îµÍˮλºÍ×î¸ßˮλ¡£Í¬Ê±×¢ÖظøË®Á÷Á¿ÓëÕôÆûÁ÷Á¿ÊÇ·ñÇкϣ¬£¬£¬¸øË®Á÷Á¿µÄת±äӦƽÎȶøÎÞÍ»±ä¡££¨3£©°´ÆÚ¡¢¡¢ÓмÍÂɵįÊÎöË®ÖÊ£¬£¬£¬×öºÃË®ÖÊÖÎÀíÊÂÇ顣ͬʱҪ°´ÆÚ¶¨Á¿¡¢¡¢¿ÆÑ§µÄ¾ÙÐÐÅÅÎÛ¡£
¹Ø×¢CA88¹É·Ý¹Ù·½Î¢ÐÅ
24Сʱ×ÉѯÈÈÏߣº400-839-1110
µØµã:
Ö£ÖÝÊÐÜþÑô·ÉÁú±±Â·Óë¿ÆÑ§´óµÀ½»Ö¯¿Ú
°æÈ¨ËùÓÐ ? CA88 Ô¥ICP±¸09006152ºÅ
ÌìÏ·þÎñÈÈÏߣº400-839-1110 / ÏúÊ۵绰£º0371-86686767